
Rum Point Residence 2 & 5
Freehold Ocean-View Building Land, Grand Cayman with Architectural Drawings
Rum Point 2 & 5 comprises 16,039 sq ft of freehold (fee simple) building land in the Cayman Islands, professionally surveyed and prepared for development on Grand Cayman, perfect for your future home, retirement location or second home offered with a simple reservation process and a fully refundable USD $250 reservation fee.
Why Buyers Are Choosing The Cayman Islands
Ownership under British Common Law
No annual land or property taxes
Professionally surveyed with boundary markers installed
Registered with the Cayman Islands Government Land Registry
Freehold (Fee Simple) Title is clean and free of encumbrances
Flexible development potential, including duplex capability
Optional 0% interest payment plan
The Cayman Islands Government Issues land TitleOwnership Type
- Ownership Type - Personally or by a company (Cayman Islands Company)
Grand Cayman
Grand Cayman’s East End – Luxury, Privacy, and Endless Opportunity.The East End of Grand Cayman offers a peaceful retreat where influential buyers and discerning homeowners find luxury without the crowds. Known for its beauty, tranquil beaches, and local charm, it’s the perfect setting for a second home, private getaway, or rental.Blending natural beauty with modern conveniences, the East End delivers exclusive living without the tourist hustle, making it a sought-after destination for those who value privacy and elegance. With no annual property taxes, 0% interest-free payment plans it’s a rare chance to own paradise on your terms.
Rum Residence walk-through
Part 1 - Part 1 of the walk-through Blake tours the land side of the development (below)
Part 2 - Blake showcases your very own private sandy beach and the amenities potential (below)
About Oasis Land Development Limited
Oasis Land Development is a prominent land developer in the Cayman Islands, specialising in the sale of freehold land across Grand Cayman, Cayman Brac, and Little Cayman.
Here is a short overview:
Focus Area: Land development and sales exclusively in the Cayman Islands (a British Overseas Territory).
Experience: Established in 2008, the company has completed over 60 developments and has over 65 years of combined experience in the Cayman Islands real estate market.
Key Offering: They sell various types of freehold (fee simple) building land, including oceanfront, ocean view, lakeside, and garden view land, for building private residences, holiday homes, or rental properties.
Unique Selling Proposition: They offer a 0% interest payment plan over six years.
Buyer Benefits: The Cayman Islands have no annual land or property tax. The purchase process can be completed remotely, and the company provides resources like architectural drawings and connections to local professionals for those who plan to build.
Certificate of Incorporation - Registered in the Cayman Islands 22nd July 2008

Certificate of Good Standing - Authorisation code 400781706363 - Government verification link www.verify.gov.ky

AIPP Certificate - Oasis Land Development holds AIPP Accreditation (Association of International Property Professionals), confirming our ten-year commitment to operating with integrity.
This membership requires adherence to a strict Code of Conduct, assuring clients that we operate with honesty, clarity, and fairness in all international property transactions. This is your assurance of a reliable and well-regulated service. You can verify our AIPP Membership click here.

Rum Point 2 & 5 Land Overview
1. Total Size: approximately 16,039 sq. ft., including beachfront and second-line land. The land is split into two sections which will fall under two titles.
- Landside area approx. 12,569 square feet (this is the buildable part of the land)
- Beach area approx 3,470 square feet
- Road frontage 54 feet
- Beach frontage 37 feet
2. Zoning: Low-Density Residential, allowing detached homes.
3. Buildable Area: - The development land (Parcel 5) is the roadside parcel and is zoned Low Density Residential, permitting a substantial maximum build area of 11,312.1 sq ft across up to three storeys (30% of the land size).
4. Private Beach: Sandy beachfront land parcel with 37 ft of sand ocean frontage.
5. Topography: Elevated between 4 to 26 feet above sea level, ensuring natural protection and stunning views. This rare dual-parcel configuration provides both elevation for ocean view construction and uninterrupted ocean frontage for private beach use, maximising long-term value, privacy, and development potential.
6. Infrastructure: Complete infrastructure is present, including road access, electricity via nearby pylons, sewage via septic tank, and piped water, which is standard in the Cayman Islands and Caribbean.
7. Parcels: Split over two parcels - one oceanfront and one second-line with ocean views.
8. No Annual Land or Property Taxes: The Cayman Islands imposes no annual property or land tax.
9. High Rental Demand: Rum Point’s exclusivity ensures strong demand for luxury rental properties.
10. Year-Round Rental Season: The Cayman Islands experiences 52 weeks of summer, supporting a consistent year-round rental market. Visit AIRBNB and VRBO for live rental rates.
11. Exclusive Location: Situated on Rum Point Drive, a peaceful area of Grand Cayman.
Land Registry Certificate - A Land Registry Certificate (often referred to as a Certificate of Title in the Cayman Islands, or a Title Register is a legal document issued by the relevant government land authority (in this case, the Cayman Islands Government Land Registry). It serves as the definitive proof of ownership and legal record for a specific parcel of land. At the point you have completed the payment plan and transferred the land into your own name your name will show on the registered title.
Land Registry (below).


Survey & Boundary Status
Current StatusRum Point Residence 2 & 5 sites have undergone full professional surveying by a registered Cayman Islands surveying professional.
- Subdivision Complete: The full subdivision process has been submitted to the Cayman Islands Planning department to legally register and install the boundaries for Rum Point Residence 2 & 5
- Verified Data: All final boundary bearings, distances, and coordinates have been logged awaiting approval for registration with the Cayman Islands Government Land Registry.
- Permanent Markers: The boundaries of Rum Point Residence 2 & 5 will be clearly defined and marked with permanent brass markers embedded in the ground, installed by a licensed Cayman Islands surveyor.
- Security: The permanent markers clearly defines the private freehold boundaries for your benefit and control in perpetuity.
Parcel Details & Finalisation
The survey confirms the rare dual-parcel configuration: an elevated development parcel (Parcel 5) and a separate, private beachfront parcel (Parcel 2).
| Element | Detail | Status |
| Final Parcel IDs | This parcel is currently formally registered as Block 45A Parcel 60 & 128 with the Cayman Islands Government Land Registry (Pre-subdivision) | Confirmed |
| Final Parcel IDs | Unique Block and Parcel numbers will be assigned to each individual land parcel | Pending |
| Final Markers | Final, permanent boundary markers will be installed on the corners of the individual parcels once the subdivision and Land Registry mapping are officially completed. | Pending |
| Registration Area | North Side, Grand Cayman | Confirmed |
Learn more about the Cayman Islands planning process watch the below interview. We speak with Mr. O'Neil from Survey Solutions Limited, who explains the surveying methods used to define land boundaries, brass cap placements, and the process that leads to the granting of an absolute title.
Fixed Boundary Survey Plan
Outlined in red on the below fixed boundary plan marks the location of Rum Point Residence 2 & 5, which has been allocated Block 45A Parcel 60 & 128 by the Cayman Islands Government.

Buildable Area Diagram
| Certified Development Framework |
| These plans are Certified Subdivision Drawings prepared by a licensed surveyor to define the legal and physical buildable limits of each lot: |
|
|
|
|
Rum Point Residence 2 & 5 Photo Gallery
Rum Point Rental Market
Reserve Rum Point Residence 2 & 5
Rum Point Residence 2 & 5 is part of a highly limited release of surveyed parcels in the Rum Point Drive area. Securing your $250 reservation removes this unique asset from the market for 10 days, allowing you the exclusive time needed to complete your due diligence.
Purchase Price: USD $695,000.00
Reservation Fee: USD $250.00, fully refundable, paid via Stripe.
Deposit: USD $25,000.00
Monthly Payments: USD $6,976.56 over 8 years with 0% interest – provided by Oasis.
Our 8-year, 0% interest payment plan ensures manageable monthly payments of USD $6,976.56 throughout the term. You can even begin developing Rum Point Residence 2 & 5 while you pay for your land.
The reservation fee can be paid via Stripe using any major credit or debit card.
![]()
The Stamp Duty rate is:
If the purchase price or market value is less than CI$2 million (USD $2,440,000.00), 7.5% is payable at the time of completion and title transfer.
If the purchase price or market value is CI$2 million or more, the stamp duty is 10% as of 1 January 2026, pursuant to The Stamp Duty (Rates of Duty) (No. 2) Regulations, 2025.
All rates are subject to change by the Cayman Islands Government. If you choose to develop the land before transferring the title, the Stamp Duty will be calculated on the combined value of both the land and the property.
A Legal Administration Fee of USD $1,520 is also payable at the time of transfer.
Important Disclosure Regarding Development:
If you construct a building on the land before transferring title, stamp duty will be assessed on the total improved value - that is, the combined value of the land and the building at the time of transfer.
-
To accept and sign, type your name below
-
To accept and sign, type your name below
Development Potential
Permitted Use
Residential Zoning allows:
Luxury family or rental villa
Guest annex (subject to planning)
Pool & outdoor structures
Rooftop terraces
Private beachfront amenities on Parcel 2
- Duplex Property
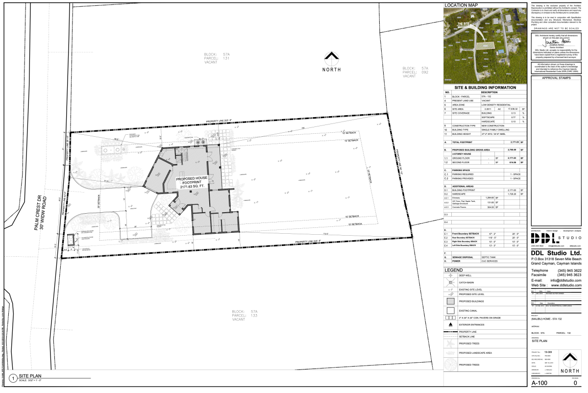
Example Orientation Malibu House Design

Potential Build Size
Subject to building setbacks you can build up to 30% of the land area which is a 11,312.1 sq.ft. total build area for Rum Point Residence 5
Up to three storeys permitted
Setbacks
| Boundary Type | Typical Minimum Setback | Context |
| Road Front and Rear Setbacks | 20ft | Distance required between the structure and the access road boundary. |
| Side Setbacks | Single = 10ft Double = 10ft Triple = 10ft | Minimum distance required between your structure and the adjacent private property lines. |
Rum Point Residence Parcel 2 - Your Own Private Beach
- Beach area approx 3,470 square feet
The beach parcel is perfect for a shaded cabana, plunge pool, or lounge deck under swaying palms. Step into the calm Caribbean waters to snorkel vibrant coral reefs just offshore, paddleboard across the bay, or simply unwind on a lounger in total seclusion.
House designs suitable for Rum Point Residence 2 & 5:
The Hampton – The Hampton brings your land to life with a thoughtfully designed three-bedroom, two-bathroom home featuring open-plan living and a car garage that can easily be adapted into an additional room.
The Cayman – One of our newest home designs, The Cayman offers a fresh, modern take on island living. The layout features open-plan living, well-proportioned bedrooms and bathrooms, and a design that maximises space and natural flow.
The Monte Carlo – The Monte Carlo is a spacious two-storey home design that shows how your land can support a more substantial island residence. With open-plan living, multiple bedrooms and bathrooms, and a garage incorporated into the layout, it suits buyers looking for space and flexibility.
The Malibu – The Malibu showcases how your land can accommodate a larger, more expansive home design. This multi-level layout offers generous open-plan living, multiple bedrooms and bathrooms, and a garage that can be retained or reconfigured to suit your needs.
The Aria – One of our newest designs, The Aria offers a modern, flexible home layout that makes the most of your land. Featuring open-plan living, well-proportioned bedrooms and bathrooms, it can easily adapt to different lifestyles.
Berkley Duplex - A versatile and stylish duplex designed for plots over 12,500 square feet. Perfect as a rental property, a second home, or a combination of both, offering dual-income potential and spacious island living. (Six Bedroom Duplex Property (Great for Rental!))
Architectural Plans Video Explainer
Video length: 90–120 seconds
The below video explains:
An overview of the drawings you receive;
Why builders and planners require the drawings;
How the drawings are adapted to your specific lot
Miami-Dade-based building codes (updated regularly)
Planning Permission and Red Card (building permit) process
Final construction drawings must be reviewed and certified by a licensed Cayman Islands architect and engineer and signed off by the Cayman Islands Planning Department.